潜江市清华园项目竣工验收规划条件核实批前公示
潜江市清华园项目竣工验收规划条件核实
批前公示

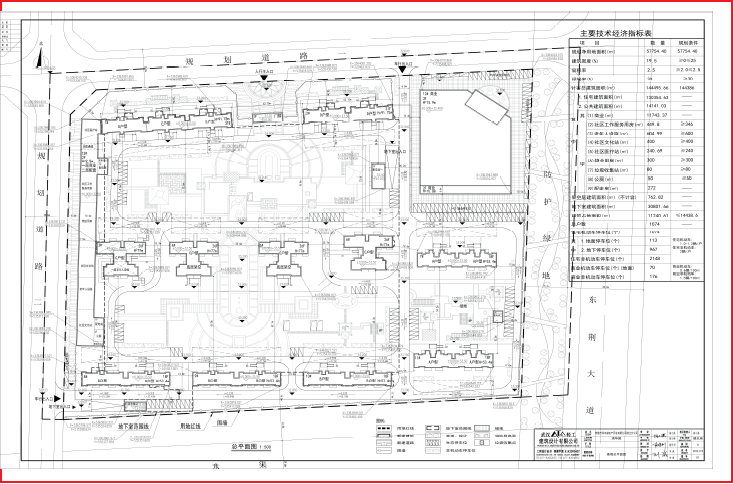
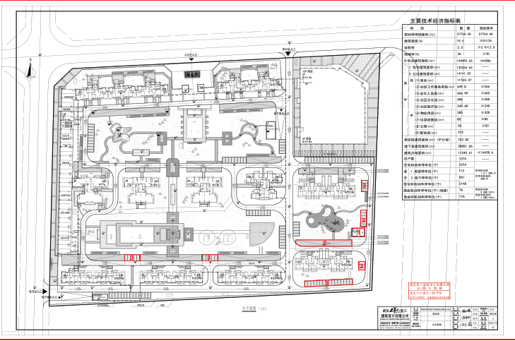
潜江市清华园项目位于东荆大道以西、兴盛路以北,建设单位为赤壁市泽中房地产开发有限公司潜江分公司,该项目于2018年8月23日取得《建设工程规划许可证》,目前项目已完工,项目局部进行了调整,现将调整内容公示如下:
1、原配电房2现调整为2台箱变 ;
2、11#楼南侧登高场位置调整到北侧,南侧调整为停车位;
3、地上部分停车位位置调整。
现进行规划条件核实批前公示,公示期7天(2022年12月26日至2023年1月1日),相关利害关系人如有异议可在公示期内以书面形式向潜江市自然资源和规划局反映。
特此公示。
联系人:陈庆
联系电话:13407288300
地址:潜江市园林办事处潜阳中路13号(市建筑工程规划服务中心)
潜江市自然资源和规划局
2022年12月26日
调整前设计方案

调整后设计方案

免责声明:
1、 文章图片来源于项目效果、实景等, 因编辑需要,文字图片无必然联系,具体数据以实际交楼为准;
2、我们所发布的所有文章、图片、音视频文件等资料版权归版权所有人所有,部分为原创或转载。如有涉及不能输出不宜上网供大家浏览,或不应无偿使用,请及时通知我们,以迅速采取适当措施,避免给双方造成不必要的经济损失;
3、本文系房地产宣传推广软文,如有涉及不能输出不宜上网供大家浏览,或不当言语,请及时通知我们!

