潜江市龙虾城二、四期项目修建性详细规划(第二次修编)批前公示


根据《中华人民共和国城乡规划法》第26条和《湖北省城乡规划条例》第22条之规定,现对潜江市龙虾城二、四期项目修建性详细规划(第二次修编)进行批前公示,公示期7天。(2022年12月6日至2022年12月12日)
公示内容如下:
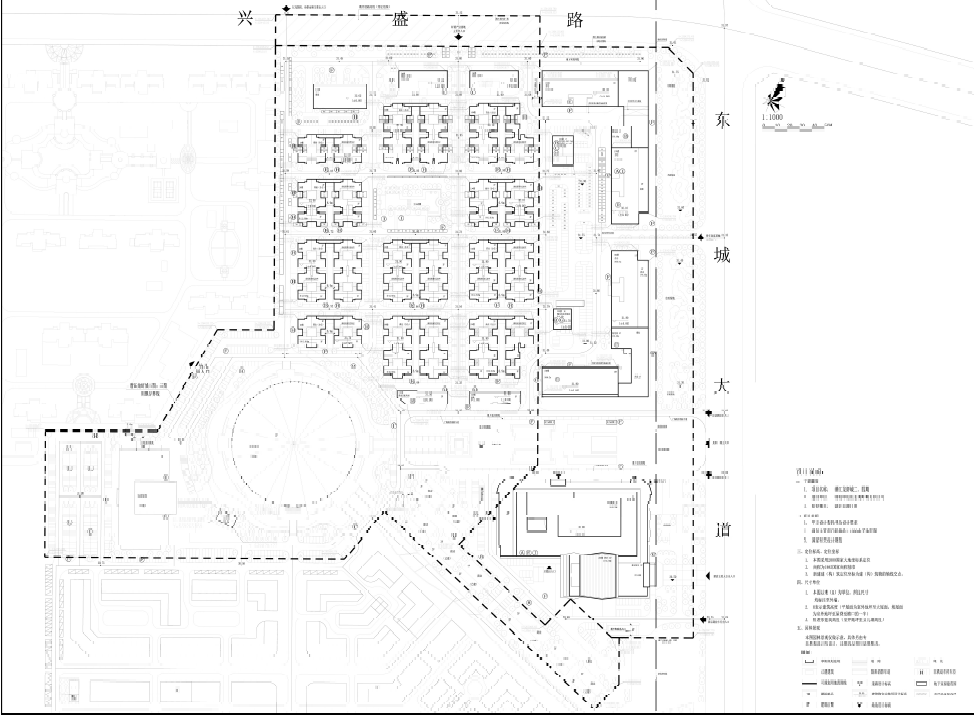
该项目用地总面积168234.47平方米,计容建筑面积200891.03平方米,建筑密度31.34%,容积率为1.23。
相关利害关系人如有异议可在公示期内以书面形式向潜江市自然资源和规划局反映。
特此公示。
联系人:李军
联系电话:18986958339
地址:潜江市园林办事处潜阳中路13号(市建筑工程规划服务中心)
潜江市自然资源和规划局
2022年12月06日
▼修建性详细规划总平面图▼


